Description
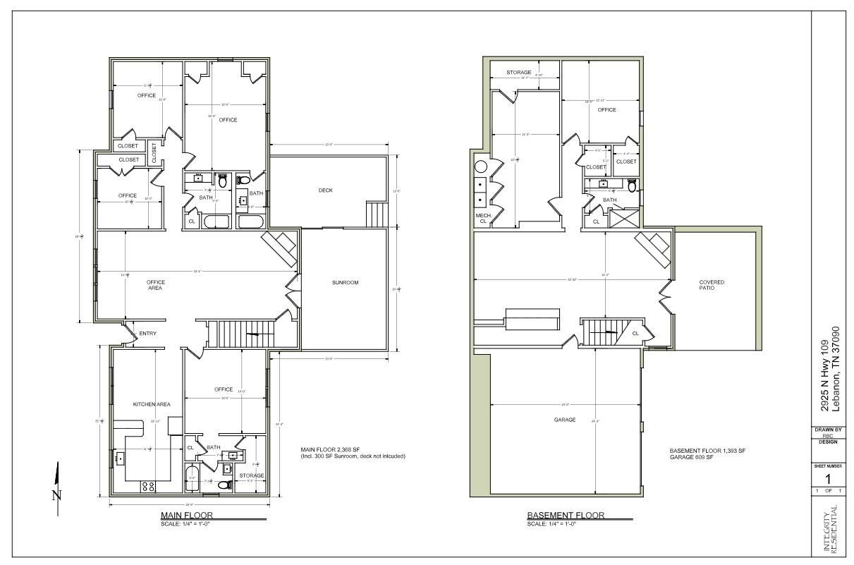
* Currently occupied but will vacate in 1-week's notice when rented * 3,761 SqFt Office/Retail Space Available | Rear Parking Available | Conveniently Located Less than 3 miles to I40 | Triple Net Lease | Minimum 3 Year Lease | Multiple private offices | Open spaces for waiting areas and/or conference rooms | Multiple bathrooms, 1 includes a shower | Private & Enclosed Sunroom/Florida room | Separate Covered back patio (Below Sunroom) | Customer parking in front | Ample Parking for staff and/or equipment around back | 2 car garage! The owner will consider leasing the 1st and 2nd floors separately (See Floorplan for Square footages). Dividing the space would include a rent premium. Buildout is negotiable. Call for more information. Agent required at all showings!
-
0BEDS
-
0.89ACRES
-
0BATHS
-
01/2 BATHS
School Ratings & Info
Description
* Currently occupied but will vacate in 1-week's notice when rented * 3,761 SqFt Office/Retail Space Available | Rear Parking Available | Conveniently Located Less than 3 miles to I40 | Triple Net Lease | Minimum 3 Year Lease | Multiple private offices | Open spaces for waiting areas and/or conference rooms | Multiple bathrooms, 1 includes a shower | Private & Enclosed Sunroom/Florida room | Separate Covered back patio (Below Sunroom) | Customer parking in front | Ample Parking for staff and/or equipment around back | 2 car garage! The owner will consider leasing the 1st and 2nd floors separately (See Floorplan for Square footages). Dividing the space would include a rent premium. Buildout is negotiable. Call for more information. Agent required at all showings!
Properties marked with the IDX logo are provided courtesy of the RealTracs Internet Data Exchange Program. Some or all of the listings may not belong to the firm whose website is being visited (The Helton Real Estate Group, 615-447-8437). IDX information © 2025 MTRMLS, Inc. Information is believed to be accurate but not guaranteed by the MLS or The Helton Real Estate Group. IDX information is provided exclusively for consumers' personal, non-commercial use and may not be used for any purpose other than to identify prospective properties consumers may be interested in purchasing. Data last updated 2025-11-11T09:06:05.87.
Based on information submitted to the MLS GRID as of 2025-11-11T09:06:05.87. All data is obtained from various sources and may not have been verified by broker or MLS GRID. Supplied Open House Information is subject to change without notice. All information should be independently reviewed and verified for accuracy. Properties may or may not be listed by the office/agent presenting the information.
Click here for MLS GRID DMCA Notice

Offered by Cumberland Real Estate LLC: 6155876145.
Copyright 2025 RealTracs, Inc. Information Is Believed To Be Accurate But Not Guaranteed. Listings courtesy of Realtracs MLS as distributed by MLS GRID.