Description
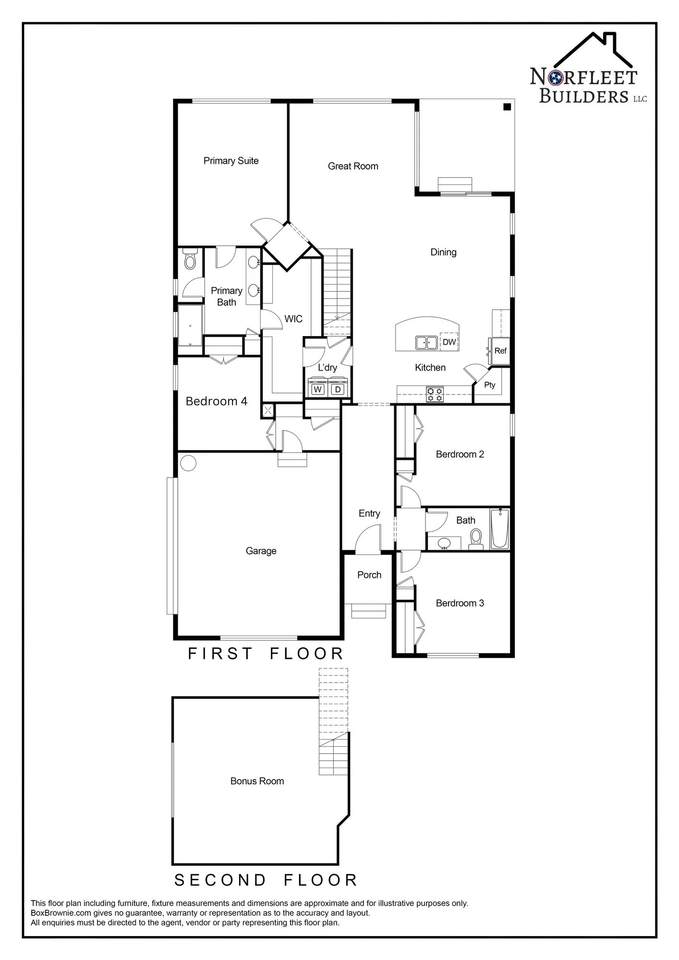
Built by respected local builder Norfleet Builders, this 4-bedroom, 2-bath modern farmhouse plan in the sought-after Cambria subdivision checks all the boxes. With over 2,000 square feet of main-level living space, the open floor plan provides ideal functionality for modern living. The gourmet kitchen anchors the home and flows effortlessly into the main living areas — perfect for hosting or relaxing. Need extra space? The oversized bonus room gives you endless possibilities. Set on a flat, wooded ¼+ acre lot, this property offers both privacy and practicality — room to play, entertain, or create your dream outdoor space. Plenty of storage, thoughtful design, and quality construction make this one stand out. Be involved with choosing selections during the build process. This is a pre-sale with expected finish day in mid July. Contact listing agent with questions.
-
4BEDS
-
0.26ACRES
-
2BATHS
-
01/2 BATHS
-
2,473SQFT
-
$216$/SQFT
School Information
Description
Built by respected local builder Norfleet Builders, this 4-bedroom, 2-bath modern farmhouse plan in the sought-after Cambria subdivision checks all the boxes. With over 2,000 square feet of main-level living space, the open floor plan provides ideal functionality for modern living. The gourmet kitchen anchors the home and flows effortlessly into the main living areas — perfect for hosting or relaxing. Need extra space? The oversized bonus room gives you endless possibilities. Set on a flat, wooded ¼+ acre lot, this property offers both privacy and practicality — room to play, entertain, or create your dream outdoor space. Plenty of storage, thoughtful design, and quality construction make this one stand out. Be involved with choosing selections during the build process. This is a pre-sale with expected finish day in mid July. Contact listing agent with questions.
Properties marked with the IDX logo are provided courtesy of the RealTracs Internet Data Exchange Program. Some or all of the listings may not belong to the firm whose website is being visited (The Helton Real Estate Group, 615-447-8437). IDX information © 2026 MTRMLS, Inc. Information is believed to be accurate but not guaranteed by the MLS or The Helton Real Estate Group. IDX information is provided exclusively for consumers' personal, non-commercial use and may not be used for any purpose other than to identify prospective properties consumers may be interested in purchasing. Data last updated 2026-03-08T23:08:38.677.
Based on information submitted to the MLS GRID as of 2026-03-08T23:08:38.677. All data is obtained from various sources and may not have been verified by broker or MLS GRID. Supplied Open House Information is subject to change without notice. All information should be independently reviewed and verified for accuracy. Properties may or may not be listed by the office/agent presenting the information.
Click here for MLS GRID DMCA Notice

Offered by SixOneFive Real Estate Advisors: .
Copyright 2026 RealTracs, Inc. Information Is Believed To Be Accurate But Not Guaranteed. Listings courtesy of Realtracs MLS as distributed by MLS GRID.